The Carolina
5,925 Sq.Ft
About this floor plan
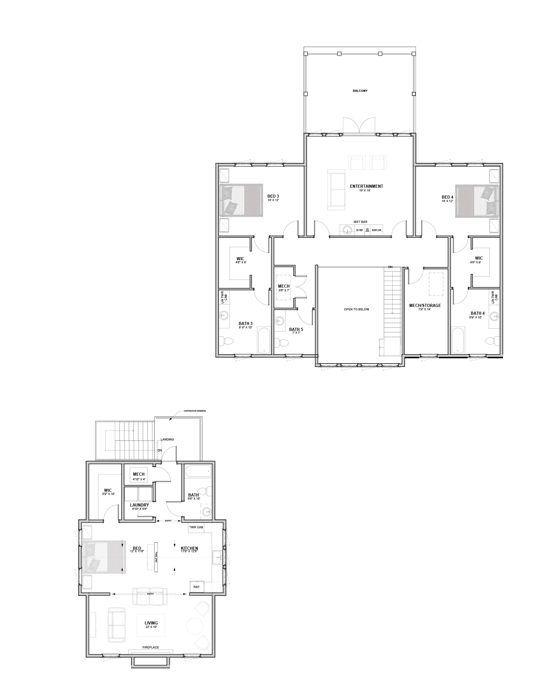
This 5,925 square foot Coastal home blends refined symmetry with expansive, livable design, anchored by a three-car courtyard garage topped with a full guest suite complete with its own kitchen, bath, and private staircase. The garage and suite connect to the main home through a covered breezeway, leading into a well-appointed mudroom with ample storage and an adjacent laundry room. The left wing of the home features an additional bedroom suite and a dedicated office with rear-facing views, offering flexibility as a secondary guest room if needed. At the heart of the home, a dramatic two-story foyer and staircase open into a spacious central core where the kitchen, dining, and living areas remain distinct yet seamlessly connected. The front-positioned kitchen introduces abundant natural light while preserving uninterrupted rear glazing in the dining and living spaces, maintaining strong visual connections to the outdoors throughout. The opposite wing is dedicated to the owner’s suite, complete with dual closets and a generously sized bath, creating a private retreat. Upstairs, two additional bedroom suites and a large entertainment room with a rear-facing balcony provide elevated living and gathering spaces, completing a home designed for both everyday comfort and extended hospitality.
Floorplan
Download Floorplan
The Carolina
5 Bedrooms
6 full / 2 half Bathrooms
2 Floors
3 Car Garage
Conditioned First Floor:3,325 SF
Conditioned Second Floor:1,685 SF
Total Conditioned:5,925 SF
3-Car Garage:875 SF
Front Porch:300 SF
Rear Porch:900 SF
Total Under Roof:8,290 SF

You might also be interested in




