The Jekyll
3,510 Sq.Ft
About this floor plan
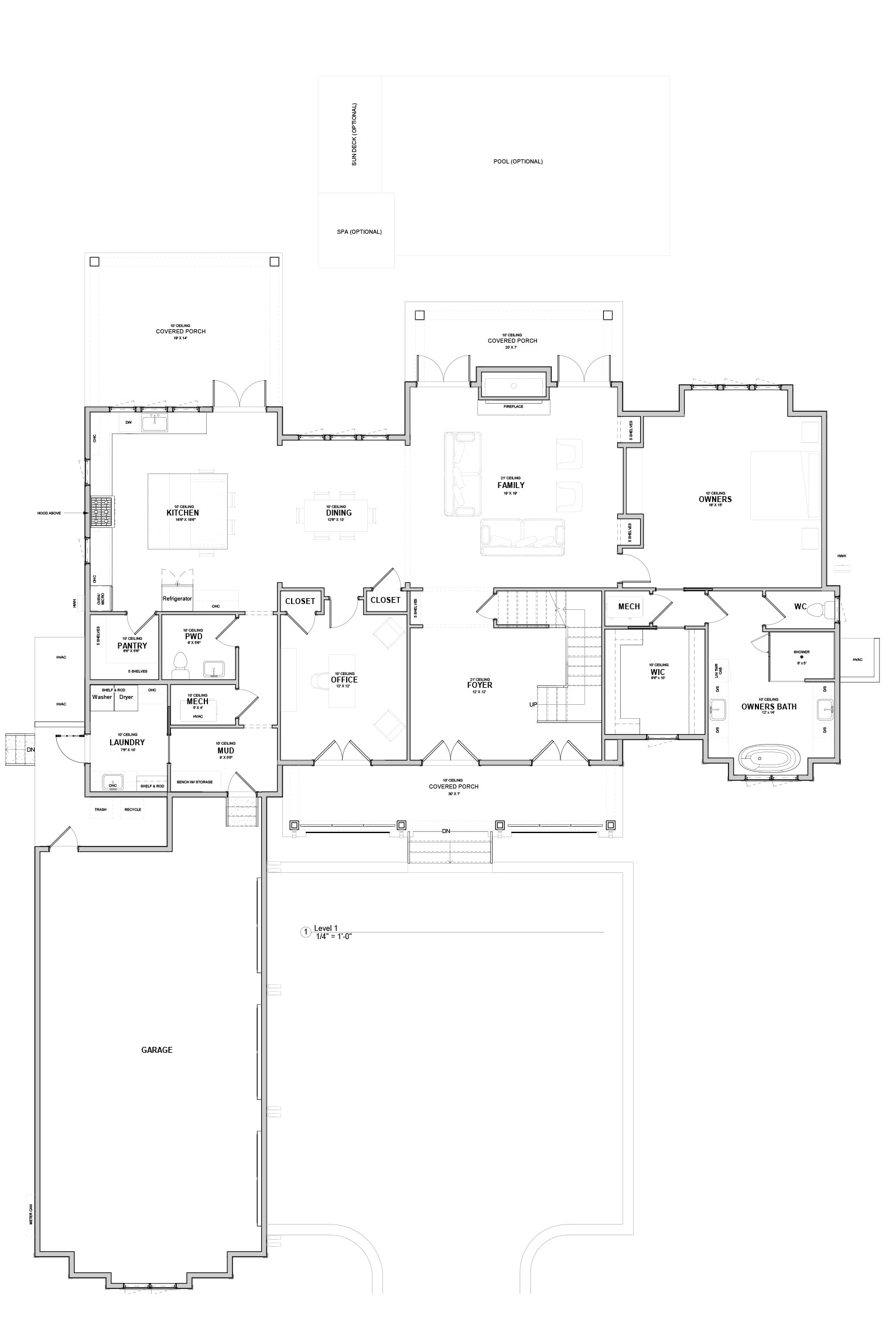
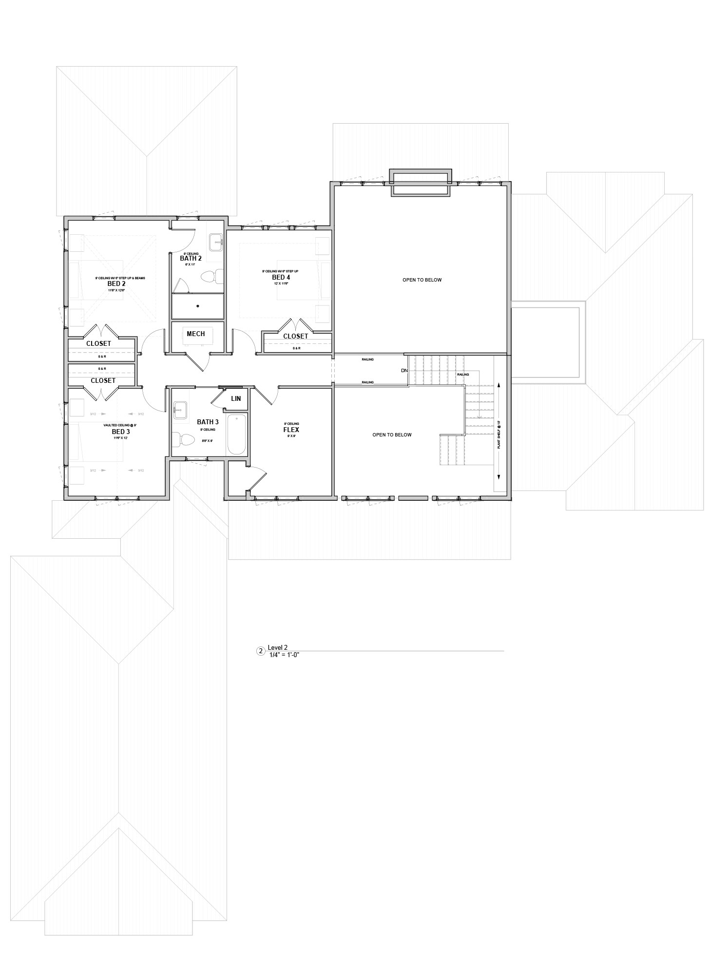
This 3,510 square foot Carolina Coastal–inspired home blends timeless symmetry with relaxed livability, featuring a three-car courtyard garage and a balanced façade that creates a calm, welcoming presence. A dramatic two-story foyer with a statement staircase leads into a spacious two-story family room, where a wood-burning fireplace is flanked by glass doors opening to the backyard, filling the space with natural light. The kitchen and dining areas flow seamlessly into the family room, offering an open-concept layout with well-defined spaces for both everyday living and entertaining. A front-facing office provides convenient access while remaining connected to the home’s interior, and the main-level owner’s suite offers a private retreat. Upstairs, three additional bedrooms and a flexible gathering space provide room to adapt to a variety of lifestyles.
Floorplan
Download Floorplan
The Jekyll
4 Bedrooms
3.5 Bathrooms
2 Floors
3 Car Garage
Conditioned First Floor:2,460 SF
Conditioned Second Floor:1,050 SF
Total Conditioned:3,510 SF
3-Car Garage:950 SF
Front Porch:200 SF
Rear Porches:450 SF
Total Under Roof:5,110 SF

You might also be interested in




